Über diese Immobilie
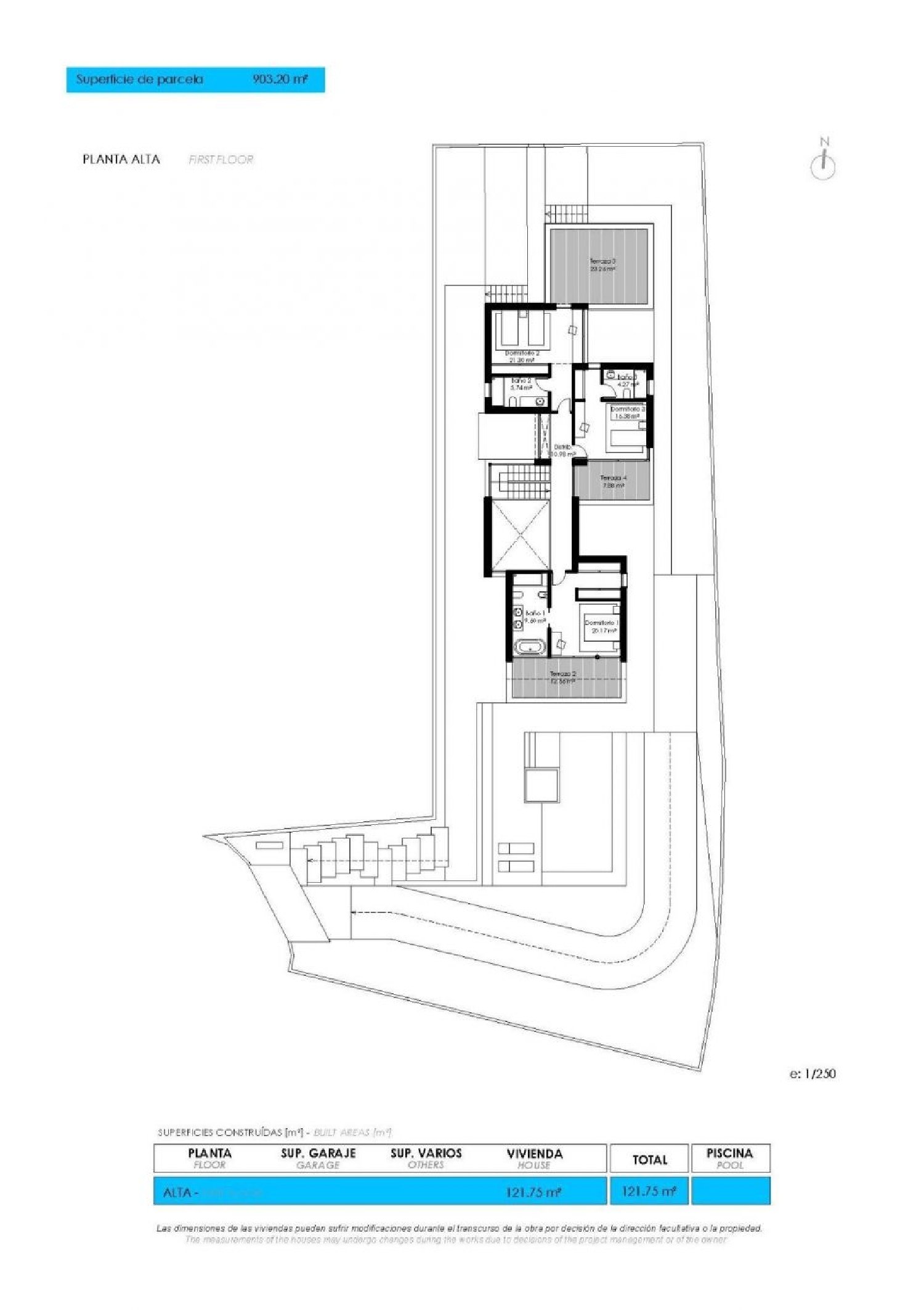
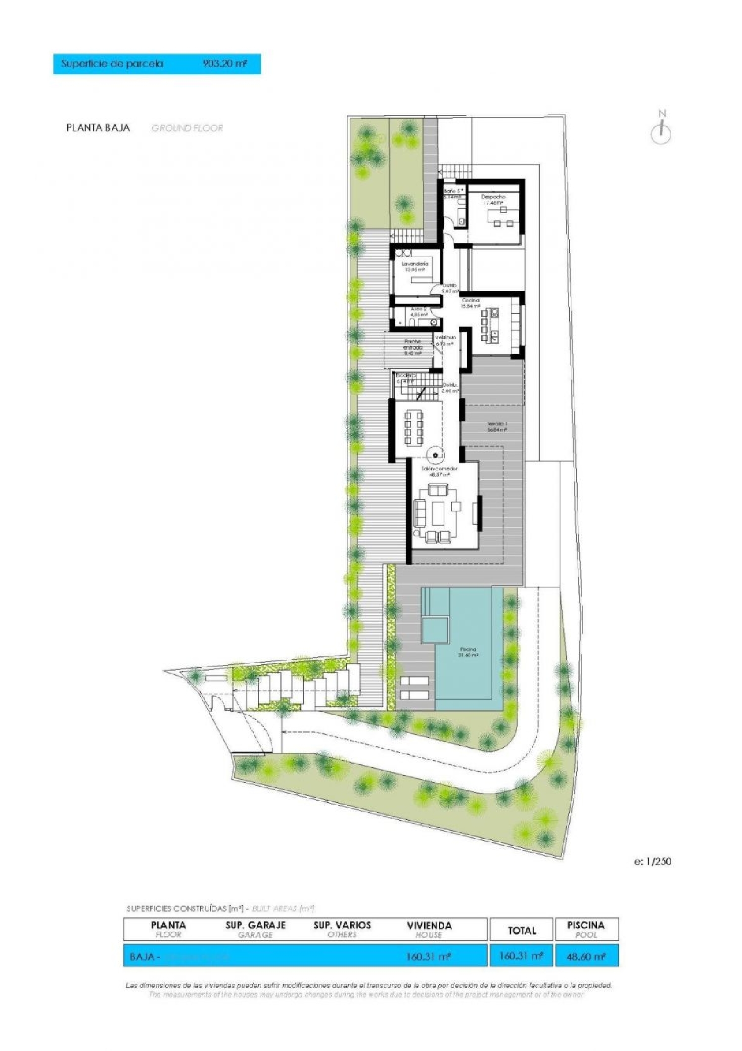
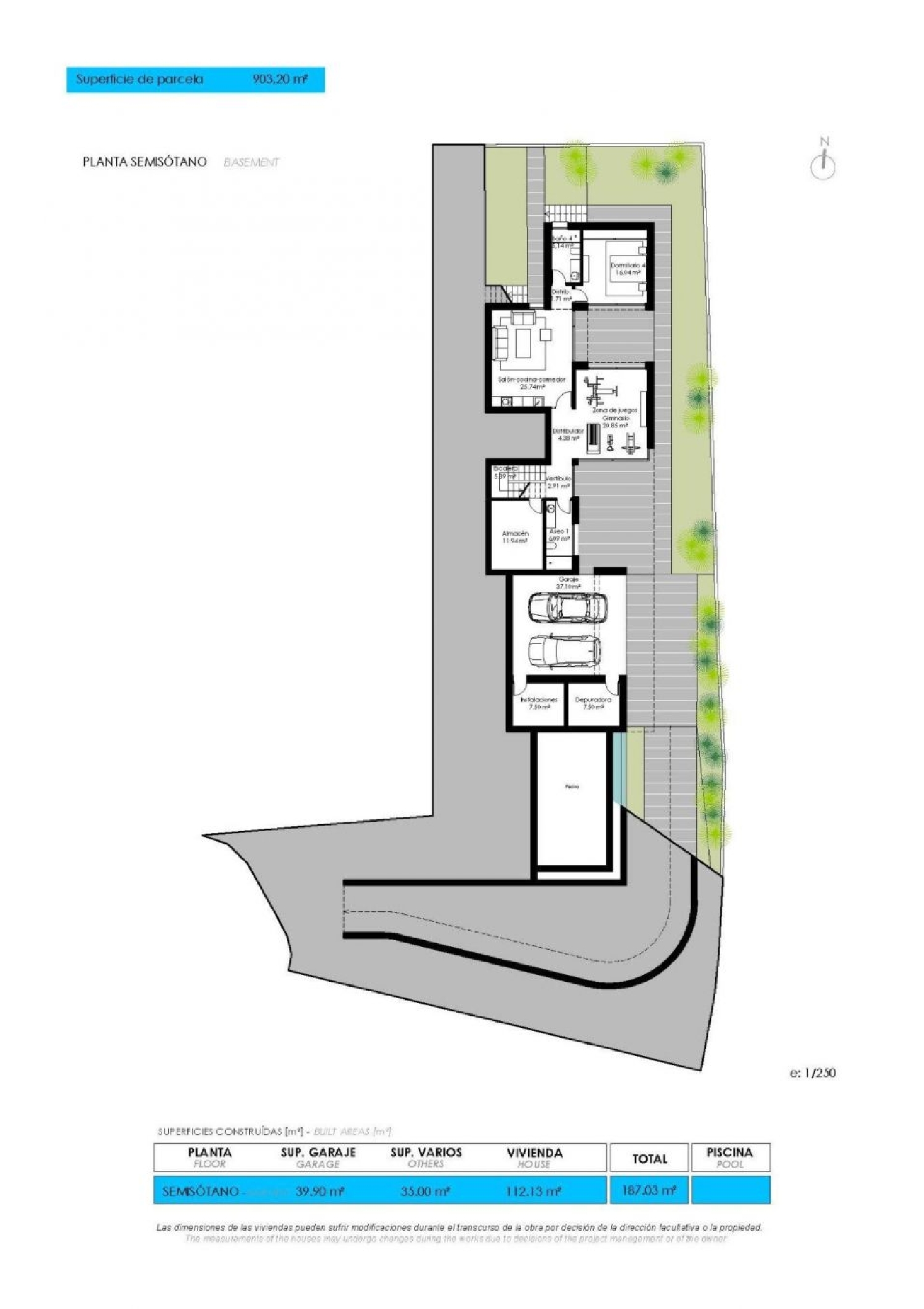
Exklusive neue Villen zum Verkauf in Las Farolas, Mijas Costa Erstklassige Lage am Meer an der Costa del Sol Entdecken Sie diese neue Wohnanlage mit 7 Luxusvillen in der renommierten und etablierten Urbanisation Las Farolas zwischen Fuengirola und La Cala de Mijas. Nur 100 Meter vom Strand entfernt, bieten diese außergewöhnlichen Häuser einen teilweisen Meer- und Bergblick und sind direkt von der Küstenstraße N-340 (A7) aus leicht zu erreichen. Die Gegend ist bekannt für ihre Ruhe, die Nähe zum Mittelmeer und die hervorragende Anbindung an Málaga, Marbella und den Flughafen.Entfernungen zu den wichtigsten Sehenswürdigkeiten:Strand: 100 mLa Cala de Mijas: 3 kmZentrum von Fuengirola: 6 kmMarbella: 22 kmInternationaler Flughafen Málaga: 30 kmNächstgelegener Golfplatz (Chaparral Golf): 2 kmZentrum von Málaga: 40 km Elegantes Design und höchste Bauqualität Dieses Projekt wurde von einem Bauträger mit langjähriger Erfahrung an der Costa del Sol realisiert und entspricht den höchsten Standards in Bezug auf Qualität, Sicherheit und modernes Design. Jede Villa verbindet mediterranen Charme mit zeitgenössischer Architektur und bietet einen hellen, funktionalen und eleganten Wohnraum. Großzügiger Grundriss auf drei Ebenen Jede Villa erstreckt sich über drei Etagen und bietet großzügige Innen- und Außenbereiche: Untergeschoss: Garage für zwei Autos, Technikräume, Abstellraum, ein zusätzliches Schlafzimmer mit Bad und Mehrzweckbereiche, die sich ideal für einen Fitnessraum, ein Heimkino oder ein Spielzimmer eignen. Erdgeschoss: großer Wohn- und Essbereich mit Küche, Waschküche, Gästetoilette und einem Schlafzimmer mit eigenem Bad. Der Wohnbereich öffnet sich zu einer weitläufigen Terrasse mit privatem Pool und Garten. Obergeschoss: zusätzliche Schlafzimmer, darunter die Master-Suite mit freistehender Badewanne und Zugang zu privaten Terrassen, teilweise mit Meerblick. Luxuriöse Ausstattung und moderner Komfort Jede Villa ist mit hochwertigen Materialien und modernster Technologie ausgestattet, darunter: Voll ausgestattete Bosch-Küchengeräte Motorisierte Rollläden in allen Schlafzimmern Fußbodenheizung über aerothermisches System und Klimaanlage über Kanäle. Smart-Home-Automatisierung zur Steuerung von Jalousien, Beleuchtung und Klima Landschaftsgärten mit automatischem Bewässerungssystem Entfernungen zu den wichtigsten Sehenswürdigkeiten: Strand: 100 m La Cala de Mijas: 3 km Zentrum von Fuengirola: 6 km Marbella: 22 km Internationaler Flughafen Málaga: 30 km Nächstgelegener Golfplatz (Chaparral Golf): 2 km Zentrum von Málaga: 40 km Ein Lebensstil voller Komfort und Prestige Diese Villen in Las Farolas bieten eine unvergleichliche Kombination aus Privatsphäre, Luxus und Nähe zum Meer und sind somit ideal als Dauerwohnsitz, Ferienhaus oder Investition an der Costa del Sol. Kontaktieren Sie uns noch heute, um einen Besichtigungstermin zu vereinbaren und Ihre Traumvilla in Mijas Costa zu entdecken.